Cửa kính ray trượt được thi công lắp đặt chủ yếu cho các không gian như cửa thông giữa phòng khách và phòng bếp, phòng ăn, không gian văn phòng, shop thời trang, nhà hàng…
Với ưu điểm sử dụng kính cường lực có độ dày phổ biến là 10mm giúp cho mẫu cửa sở hữu những nét thẩm mỹ cao, tinh tế, bền đẹp theo năm tháng và đảm bảo độ an toàn cho khách hàng.
![]()
![]()
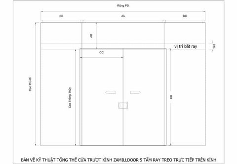
Mẫu cửa kính ray trượt hiện đang phổ biến trên thị trường:
1. Cửa lùa ray treo phi (ϕ) 25 hay gọi là cửa lùa ray trượt inox 304
Đặc điểm: là ray bằng inox 100% chống gỉ sét, giữ cửa chắc, chống xụt xệ, có độ bóng tuyệt đối, màu sáng trắng tạo nên sự sang trọng cho bộ cửa cũng như không gian. Cửa sử dụng ray bằng inox chính hãng để gắn vào bộ phận ray phía trên cửa để cửa di chuyển trên ray
Bộ phụ kiện đi kèm: Ray inox gồm bánh xe đơn hoặc kép, Tay nắm âm hoặc đẩy, Thiết bị đỡ ray, Zoăng, U inox 304, giảm chấn
Ưu điểm:
- Chịu được trọng tải của cửa kính lùa khỏang 130kg, đặc biệt là đối với cửa có diện tích rộng
- Độ bền cao. Ray bằng inox chống gỉ sét, chống móp méo giúp cửa luôn họat động tốt
- Sử dụng phổ biến cho các loại cửa lớn cách trần hoặc các loại cửa với vách trên.
- Kiểu dáng sang trọng, hiện đại và khỏe khoắn
- Thi công nhanh chóng, dễ dàng
- Cửa được lắp giảm chấn giúp tránh bị trượt mạnh và chạm tường gây vỡ kính.
Một số mẫu cửa kính ray trượt treo phi 25
![]()
2. Cửa lùa ray treo inox hộp 10x30
Đặc điểm: là dòng sản phẩm có thiết kế sang trọng và kết cấu bền chắc. Cửa lùa ray treo inox 10×30 được trang bị thêm hệ thống bánh xe, tích hợp dọc trên ray treo inox hộp 10×30. Do đó, khi người dùng sử dụng cửa kính lùa một chiều, các bánh xe sẽ hỗ trợ lực đẩy cho sản phẩm nhẹ nhàng.
Bộ phụ kiện đi kèm: Chống nhấc dưới, Bánh xe treo D10x30, Liên kết ray kính, Bát liên kết ray tường, chặn bánh xe, dẫn hướng, Ray trượt inox 10×30, tay nắm âm
Ưu điểm:
- Cách âm, cách nhiệt tốt, giúp bạn tránh được ô nhiễm tiếng ồn
- Mặt kính trơn bóng, chắn bụi tốt, dễ vệc sinh giảm sức lao động lau chùi
- Lớp kính cường lực đạt chuẩn an toàn, có khả năng chịu lực cao gấp 5 lần cửa kính thông thường
- Giá khá rẻ, phù hợp với nhiều đơn vị khách hàng
Một số mẫu cửa ray trượt An Phong glass đã thi công và hoàn thiện
![]()
![]()
![]()
![]()
Anphongglass 0913034851 - chuyên thi công cửa kính lùa ray trượt inox phi 25 và Cửa lùa ray treo inox hộp 10x30 đảm bảo chất lượng và độ bền theo thời gian. Với dịch vụ chuyên nghiệp, bảo hành dài hạn chắc chắc quý khách hàng sẽ hài lòng với dịch vụ của chúng tôi!
